インテリアコーディネーター等の資格スクール

 
 
受講生専用ページ 学生の方へ 法人の方へ サイトマップ
 
 
資料請求無料セミナー・イベント 無料相談会・見学会お電話でのお問合せはこちら
インテリアプロスクールHIPS<ヒップス>は(株)ハウジングエージェンシーが主催する資格スクールです。
東京(新宿)校大阪校横浜校大宮校名古屋校天神校在宅
 
  HIPSとは 資格について 講座一覧 お申込方法 校舎案内 合格体験記 よくある質問 書籍案内  
 
インテリアコーディネーター2次対策基礎製図講座
講座メニュー 講座メニュー
講座メニュー
講座メニュートップ 講座の特長 合格対策講座 2次試験合格対策講座 在宅(Eラーニング講座) 受講生の声 インテリアコーディネーターとは 試験概要
講座メニュー
HIPS各校のご案内
東京(新宿)校
大阪校
横浜校
大宮校
名古屋校
天神校
その他の地域
在宅・Eラーニング
すべての校舎一覧はこちら
資格試験合格対策講座
インテリアコーディネーター
インテリアプランナー
マンションリフォームマネジャー
キッチンスペシャリスト
福祉住環境コーディネーター
整理収納アドバイザー
ライティングコーディネーター
その他の資格対策講座
すべての資格講座一覧はこちら
実務・スキルアップ講座
早描き営業パース
照明1日塾
インテリアスピードスケッチ
その他の実務講座
すべての実務講座一覧はこちら
各種お問合せ
資料請求
無料セミナー・体験授業
教室見学会・相談会
 
資料請求 無料セミナー・イベント 無料相談会・見学会
講座申込
講座概要

●2次試験突破には早めの準備が不可欠です!

インテリアコーディネーター2次試験では、「プレゼンテーション」の名称で「製図」の問題が出題されます。製図未経験の方にとって、1次試験終了後からの短期間で「合格するインテリア図面」を描けるようになるのは困難です。
当講座では、初めての方でも、線の引き方から図面の描き方まで、しっかりと身につけられます。
早い時期から製図の基礎を学ぶことで、2次試験に最低限必要な「作図力」を習得し、1次試験後に2次試験に向けて好スタートを切ることができるのです。

●講座のポイント

初学者や、製図の基礎から学びたい方におすすめ
ドリル形式の練習で基礎からしっかり学習
1次試験でも問われる製図の基礎知識の理解

●こんな方が毎年受講されています

▼初めての受験で、かつ製図未経験の主婦・学生・異業種の方
▼製図経験はあるものの、お仕事ではCAD製図がほとんどで手描きに自信の無い方
▼学生時代に基礎製図は習ったものの、ご無沙汰していて不安な方
▼2次試験の受験経験者で、減点されないポイントを一から勉強したい方
▼2次試験対策で、余裕をもってのぞみたい方

●HIPSの2次試験対策合格フローチャート


▼主なカリキュラム

●インテリア製図の基本…製図用具の使い方・線の引き方
●平面図を描く…描き方のルール・演習問題
●展開図・家具詳細図を描く…描き方のルール・演習問題
●アイソメ図・パースを描く…描き方のルール・演習問題
*カリキュラムは変更になることがあります。
試験に出題される主な製図

●2次試験に出題される主な図面

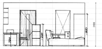
▼平面図
インテリアコーディネーター資格試験において、必ず出題される図面です。 建物を水平方向に切断した状態を投影図にしたものを指します。一本の線を引く場合でも、壁を表現するための線とドアを表現するための線では太さを変える、といったルールがあります。 また、設問に提示された条件を満たすインテリアの配置を考え、図面上に表さなければなりません。
▼展開図
室内の壁面の様子を表現した図面。サッシやドアなどの開口部の高さ寸法を記すとともに、インテリア試験では、家具の立面や断面、カーテンや照明機具なども表現します。平面図に次いで出題数の多い図面です。
▼パース
実際の「見た目」に近い立体表現を可能にする図面。絵画やプレゼンテーション図面に多用され、別名「遠近法」や「透視図」とも呼ばれています。
試験対策用の技術を身に付けた人と、そうでない人でハッキリ差が出る図面です。
使用教材
●インテリアコーディネーター資格試験「はじめてのインテリア製図 合格する図面の描き方[第4版]」
合格図面が簡単に描けるようになる最新の入門書!
製図の基礎知識、各種図面の描き方、インテリア計画の進め方、図面の着彩方法の四段階構成。製図未経験者の入門書。
星野智子 著
定価 2,500円(税込 2,750円)
(株)ハウジングエージェンシー 刊


※こちらの教材は受講料には含まれません。お持ちでない方は必ず別途ご購入下さい。
  合格図面
●プレゼンテーション対策合格ワークシート
シートはすべてガイドつき。テキストと同様に、線・文字の書き方から、試験に出題されるすべての図面の描き方を実践できます。 シートの紙は本試験を想定して同質のものを使用しています。

※こちらの教材は受講料に含まれています。
  合格ワークシート
使用教材
●製図ツールセット
@製図用シャープペンシルHB 芯径:0.5mm   (Pentel)
A字消板(メッシュ)   (DRAPAS)
B直定規(15p)   (VANCO)
C三角スケール(15p)   (DRAPAS)
D製図ブラシ   (DRAPAS)
E三角定規(18p)   (DRAPAS)
F円定規   (DRAPAS)

特別価格5,240円(税込)

※こちらの教材は受講料には含まれません。(※「在宅」でお申込みの方は講座お申込み時にご購入頂けます。)
製図ツールセット
クラス・日程
開催地
概 要
在 宅G  6月初旬頃資料発送 New!
通 学  【通学の詳細はこちら】 New!
*テキストは別途ご購入いただきます。
受講料
一般価格
48,000円(税込 52,800円)
通信生価格 42,000円(税込 46,200円)
HIPS受講生・卒業生価格 38,000円(税込 41,800円)
*通信生とはハウジングエージェンシーの通信講座を受講している方のことです。
*通信生の方は「在宅」のお申込みは出来ません。あらかじめご了承ください。
よくあるご質問
Q:

「通学クラスを見学してみたいのですが・・・」

A:

見学をご希望の方は、現在開講中の通学クラスをご見学いただけます(要予約)。一緒に頑張っている仲間を知るのも心強いですね。

Q:

「在宅で本当に合格できるか心配です。」

A:

もちろんできます。昨年、在宅コース受講生の合格率は通学コースとほぼ同じでした。ヒップスの教材、カリキュラムをしっかり学習していただければ、合格に必要な実力は必ずつきます。

Q:

「分からないことがあったらどうしたらいいの?」

A:

疑問や質問のある場合は、専用の質問用紙に記入していただき郵送かFAXでお送り下さい。各分野の専門講師があなたの疑問を解決します。

注意事項
  • 一度納入した受講料は、理由のいかんを問わず、払い戻しはいたしませんのでご了承ください。
  • 当講座についてのコンテンツすべての転載転用、商用販売、無断配布、インターネット上で公開等を固く禁じます。
※お問い合せ>>>info@housing-a.co.jp
講座申込
資料請求はこちら
ページの先頭に戻る